おすすめポイント
🔸堀込車庫🚗付✨緑豊かな丘陵地にある閑静な住宅街🏠
🔸垂水駅・名谷駅等の主要駅へのバス路線も充実🚌
🔸つつじが丘小学校まで徒歩約6分で通学も安心🏫

注文住宅
\価格変更しました/Next design 垂水区つつじが丘
土地価格: 2,090万円
建物価格: 2,190万円
土地面積: 197.12m²
所在地: 神戸市垂水区つつじが丘2丁目
交通: 山陽バス「つつじが丘2丁目」徒歩約3分
JR山陽本線「垂水駅」バス乗車25分
神戸市営地下鉄「総合運動公園駅」徒歩約47分
区画図

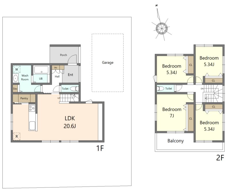
プラン
参考プラン
土地価格:1,990万円 / 土地面積:197.12m²
建物参考価格:2,190万円(税込) / 建物面積:115.09m²

※参考間取りの為、間取り変更可能です。お客様のご要望をお伺いして、ご提案させていただきます。
物件概要
| 土地価格 | 2,090万円 | ||
|---|---|---|---|
| 所在地 | 神戸市垂水区つつじが丘2丁目 | ||
| 交通 | 山陽バス「つつじが丘2丁目」徒歩約3分 、JR山陽本線「垂水駅」バス乗車25分 、神戸市営地下鉄「総合運動公園駅」徒歩約47分 | ||
| 販売区画 | 1区画 | 総区画数 | 1区画 |
| 土地面積 | 197.12m² | 建ぺい率/容積率 | 50%・100% |
| 現況 | 古家あり更地渡し | 用途地域 | 第一種低層住居専用地域 |
| 道路幅員 | 公道 北側約6.0m(接道幅12.2m) | 引き渡し時期 | 相談 |
| 権利形態 | 所有権 | 建築条件 | 付 |
| 地目 | 宅地 | 取引形態 | 売主 |
| 設備 | 電気・上下水道・都市ガス | ||
| 備考 | |||
